Terminée
Du 16/06/2025 au 16/07/2025

PONT-SCORFF : PPVE préalable à la délivrance d’un permis d’aménager relatif au projet de lotissement «Le Domaine de Kermorvan»

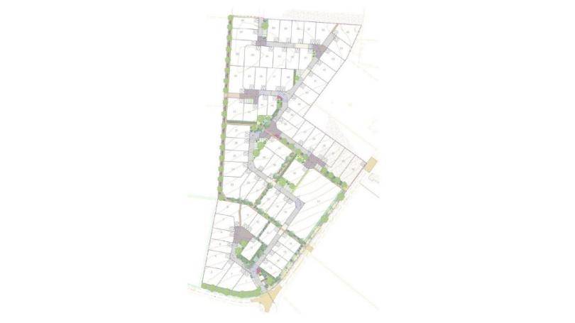
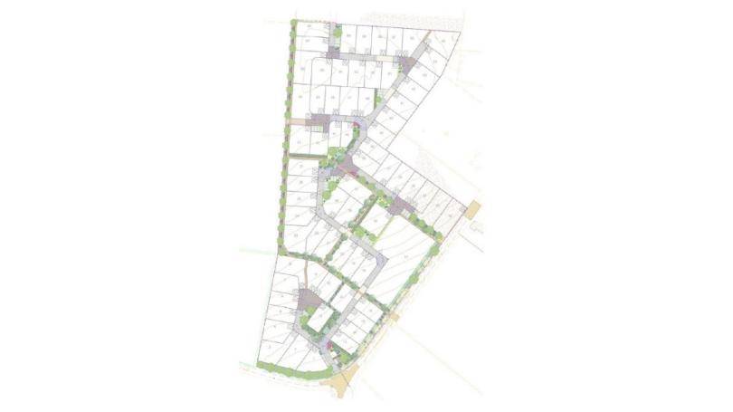
 Le projet de lotissement « Le Domaine de Kermorvan » se situe à l’Ouest du centre-bourg de Pont-Scorff, au lieu-dit « Ty Nehué ». 

Ce projet, à vocation d’habitat, est mené sous la maîtrise d’ouvrage de la société LOTISSIMO. Il porte sur un périmètre de 3,4 hectares et vise à réaliser un programme de 67 logements individuels (10 lots en accession abordable et 57 lots libres) et de 29 logements collectifs sociaux ou PSLA. 

Le projet relève de la catégorie n° 39 « Travaux, constructions et opérations d’aménagement » du tableau annexé à l’article R.122-2 du Code de l’environnement et a fait, à ce titre, l’objet d’un examen au cas par cas par l’Autorité Environnementale. Par arrêté préfectoral du 22 février 2023, le Préfet de la région Bretagne a décidé de soumettre ce projet de lotissement à la réalisation d’une évaluation environnementale. Cette dernière a été transmise à la MRAE de Bretagne, qui a émis son avis le 19 décembre 2024. 

En vertu des dispositions des articles L.123-2 et L.123-19 du Code de l’environnement, le projet est soumis à une procédure de participation du public par voie électronique. 

La présente consultation permet de mettre à disposition du public le dossier de demande de permis d’aménager relatif au projet de lotissement «Le Domaine de Kermorvan» comprenant l’évaluation environnementale. 

La participation du public par voie électronique se déroulera du lundi 16 juin 2025 au mercredi 16 juillet 2025 inclus, soit une durée de 31 jours consécutifs. 

Département(s) concerné(s): Morbihan (56)

Restez informé

Suivez l'actualité des procédures proches de chez vous !